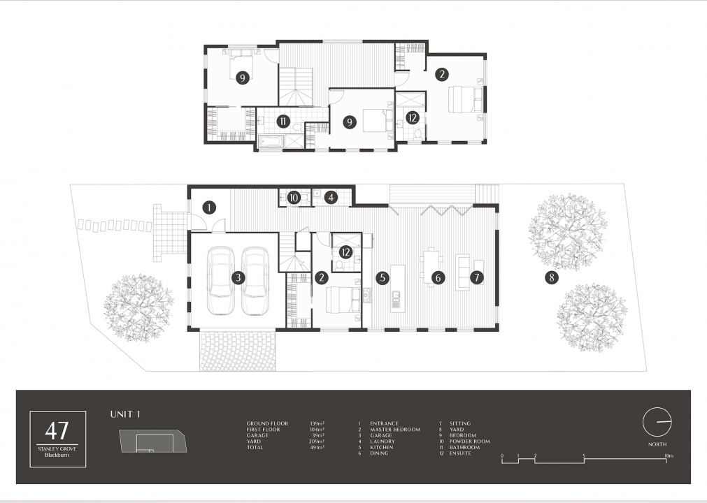
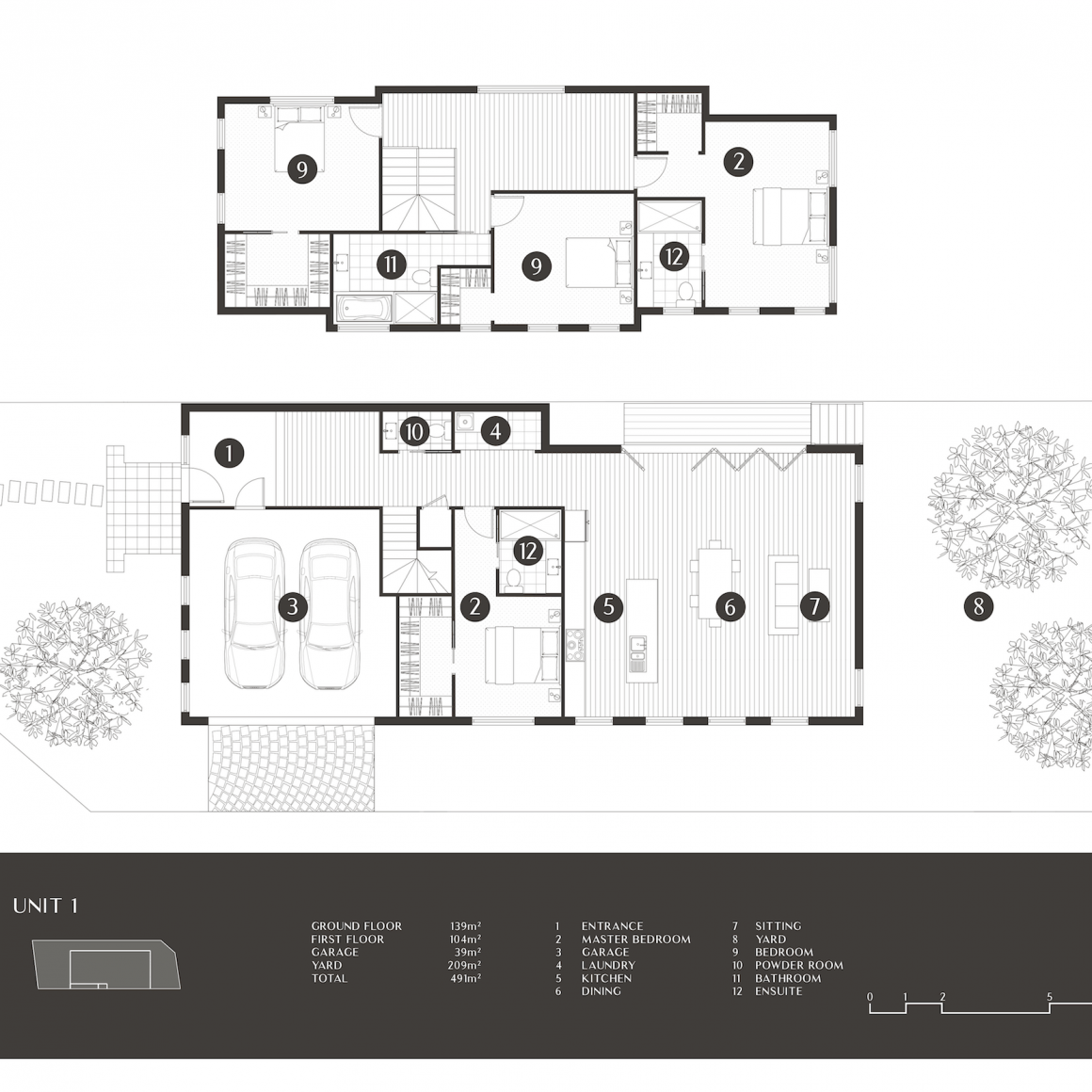
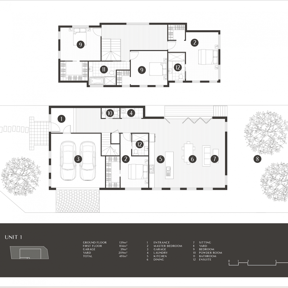
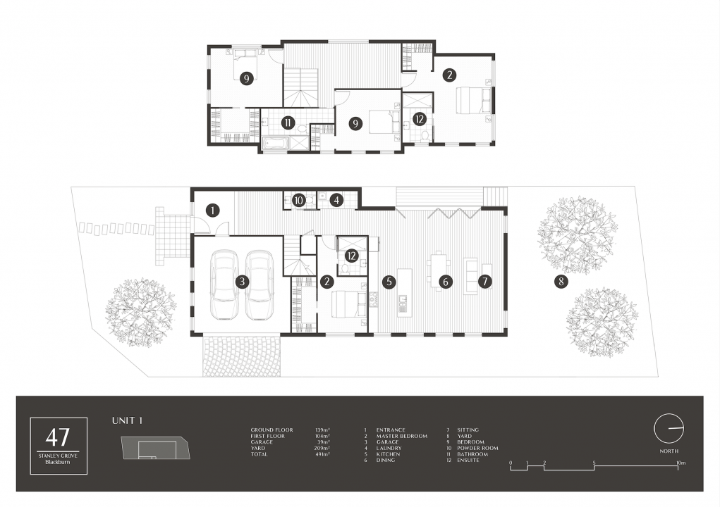
East Garden – Blackburn

  • Land Size:

    832 m2

  • Project Value:

    4 Millions +

  • Project Type:

    Multi-Dwellings